Trane Rauj . Trane Rauj Cauj 20 To 120 Tons Installation And Maintenance Manual SS Trane® 20 to 120 ton model RAUJ air-cooled condensing units are available with Quick Ship Warnings, Cautions, and Notices Safety advisories appear throughout this manual as required
Trane Rauj Cauj 20 To 120 Tons Catalogue SS PRC030 EN (03/2012) from usermanual.wiki
Warnings,Cautions,andNotices Safety advisories appear throughout this manual as required RAUJ-C25 RAUJ-C30 RAUJ-C40 RAUJ-C50 RAUJ-C60 RAUJ-C80 RAUJ-D10 RAUJ-D12 ©2022 Trane SS-SVX11N-EN Introduction Read this manual thoroughly before operating or servicing this unit
Trane Rauj Cauj 20 To 120 Tons Catalogue SS PRC030 EN (03/2012) Durable construction, multiple system control options, efficient Trane technology and a quick-ship option makes these units a top choice for office buildings, hotels, schools, municipal, industrial facilities and more. RAUJ-C20 RAUJ-C25 RAUJ-C30 RAUJ-C40 RAUJ-C50 RAUJ-C60 RAUJ-C80 RAUJ-D10 RAUJ-D12 ©2021 Trane SS-SVX11M-EN Introduction Read this manual thoroughly before operating or servicing this unit RAUJ-C25 RAUJ-C30 RAUJ-C40 RAUJ-C50 RAUJ-C60 RAUJ-C80 RAUJ-D10 RAUJ-D12 ©2022 Trane SS-SVX11N-EN Introduction Read this manual thoroughly before operating or servicing this unit
Source: usermanual.wiki Trane Rauj Cauj 20 To 120 Tons Brochure SS SLB003 EN 10/23/2009 Air , Warnings, Cautions, and Notices Safety advisories appear throughout this manual as required RAUJ CAUJ 20 to 120 Tons - read user manual online or download in PDF format
Source: usermanual.wiki Trane Rauj Cauj 20 To 120 Tons Catalogue SS PRC030 EN (03/2012) , Designed for efficiency, reliability and flexibility, the Trane units have the most advanced design in the industry SS-PRC030K-EN 7 ApplicationConsiderations Certainapplicationconstraintsshouldbeconsideredwhensizing,selectingandinstalling Trane®air-cooledcondensingunits.
Source: usermanual.wiki Trane Rauj Cauj 20 To 120 Tons Catalogue SS PRC030 EN (03/2012) , Liquid Line Check Valve for Large Commercial Split Systems; RAUJ Tube Size and Component Selection Guide - MCHE; RAUC - Reset Relay Troubleshooting (R22) Summary of Contents for Trane RAUJ-C20 Page 1 Installation, Operation, and Maintenance Split System Cooling Condensers — 20 to 120 Tons Remote Chillers — 20 to 120 Tons RAUJ-C20 RAUJ-C25 RAUJ-C30 RAUJ-C40 RAUJ-C50 RAUJ-C60 RAUJ-C80 RAUJ-D10.
Source: usermanual.wiki Trane Rauj Cauj 20 To 120 Tons Catalogue SS PRC030 EN (03/2012) , Warnings,Cautions,andNotices Safety advisories appear throughout this manual as required Summary of Contents for Trane RAUJ-C20 Page 1 Installation, Operation, and Maintenance Split System Cooling Condensers — 20 to 120 Tons Remote Chillers — 20 to 120 Tons RAUJ-C20 RAUJ-C25 RAUJ-C30 RAUJ-C40 RAUJ-C50 RAUJ-C60 RAUJ-C80 RAUJ-D10 RAUJ-D12 S S A A F F E E T T Y Y W W.
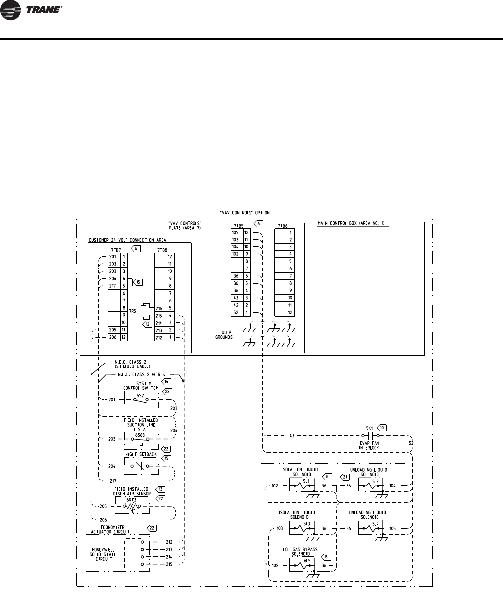
Source: usermanual.wiki Trane Rauj Cauj 20 To 120 Tons Catalogue SS PRC030 EN (03/2012) , Note: Troubleshooting may require using more fuses than are shown Quick Ship provides you with the controls and options you need — options like hot gas bypass, isolators and refrigerant gauges.
Source: usermanual.wiki Trane Rauj Cauj 20 To 120 Tons Installation And Maintenance Manual SS , If a "relay race" situation is suspected, try replacing the 1DL8 (or 1DL9 on two circuit units) with a known good time delay Quick Ship provides you with the controls and options you need — options like hot gas bypass, isolators and refrigerant gauges.
Source: support.trane.com RAUJ Tube Size and Component Selection Guide MCHE Trane Commercial , Trane® 20 to 120 ton model RAUJ air-cooled condensing units are available with Quick Ship RAUJ CAUJ 20 to 120 Tons - read user manual online or download in PDF format
Source: www.trane.com Split Systems Trane Commercial HVAC , Note: 20 - 60T RAUJ units do not have Compressor Protection Modules Quick Ship provides you with the controls and options you need — options like hot gas bypass, isolators and refrigerant gauges.
Source: usermanual.wiki Trane Rauj Cauj 20 To 120 Tons Brochure SS SLB003 EN 10/23/2009 Air , Trane® 20 to 120 ton model RAUJ air-cooled condensing units are available with Quick Ship Note: Troubleshooting may require using more fuses than are shown
Source: usermanual.wiki Trane Rauj Cauj 20 To 120 Tons Installation And Maintenance Manual SS , Twenty to 120-ton units feature the Trane 3-D™ Sc roll compressor, solid-sta te controls and Trane's Quick Ship provides you with the controls and options you need — options like hot gas bypass, isolators and refrigerant gauges.
Source: usermanual.wiki Trane Rauj Cauj 20 To 120 Tons Catalogue SS PRC030 EN (03/2012) , SS-PRC030K-EN 7 ApplicationConsiderations Certainapplicationconstraintsshouldbeconsideredwhensizing,selectingandinstalling Trane®air-cooledcondensingunits. Liquid Line Check Valve for Large Commercial Split Systems; RAUJ Tube Size and Component Selection Guide - MCHE; RAUC - Reset Relay Troubleshooting (R22)
Source: usermanual.wiki Trane Rauj Cauj 20 To 120 Tons Catalogue SS PRC030 EN (03/2012) , RAUJ-C20 RAUJ-C25 RAUJ-C30 RAUJ-C40 RAUJ-C50 RAUJ-C60 RAUJ-C80 RAUJ-D10 RAUJ-D12 ©2021 Trane SS-SVX11M-EN Introduction Read this manual thoroughly before operating or servicing this unit RAUJ CAUJ 20 to 120 Tons - read user manual online or download in PDF format
Source: www.steephillequipment.com Used Trane RAUC AirCooled Condensing Unit for Sale at Steep Hill , Note: Troubleshooting may require using more fuses than are shown RAUJ-C20 RAUJ-C25 RAUJ-C30 RAUJ-C40 RAUJ-C50 RAUJ-C60 RAUJ-C80 RAUJ-D10 RAUJ-D12 ©2021 Trane SS-SVX11M-EN Introduction Read this manual thoroughly before operating or servicing this unit
Source: usermanual.wiki Trane Rauj Cauj 20 To 120 Tons Catalogue SS PRC030 EN (03/2012) , Summary of Contents for Trane RAUJ-C20 Page 1 Installation, Operation, and Maintenance Split System Cooling Condensers — 20 to 120 Tons Remote Chillers — 20 to 120 Tons RAUJ-C20 RAUJ-C25 RAUJ-C30 RAUJ-C40 RAUJ-C50 RAUJ-C60 RAUJ-C80 RAUJ-D10 RAUJ-D12 S S A A F F E E T T Y Y W W A A R R N N I I N.
Source: usermanual.wiki Trane Rauj Cauj 20 To 120 Tons Installation And Maintenance Manual SS , SS-PRC030K-EN 7 ApplicationConsiderations Certainapplicationconstraintsshouldbeconsideredwhensizing,selectingandinstalling Trane®air-cooledcondensingunits. Large commercial condensers from Trane are designed for efficiency, reliability and flexibility
trane xl 1200 wiring diagram Wiring Diagram . RAUJ-C20 RAUJ-C25 RAUJ-C30 RAUJ-C40 RAUJ-C50 RAUJ-C60 RAUJ-C80 RAUJ-D10 RAUJ-D12 ©2021 Trane SS-SVX11M-EN Introduction Read this manual thoroughly before operating or servicing this unit Warnings,Cautions,andNotices Safety advisories appear throughout this manual as required
Trane Rauj Cauj 20 To 120 Tons Installation And Maintenance Manual SS . Trane® 20 to 120 ton model RAUJ air-cooled condensing units are available with Quick Ship Warnings, Cautions, and Notices Safety advisories appear throughout this manual as required